下京区坊門町の京町家ゲストハウス

リノベーション
RENOVATION
阪急京都線「大宮」駅 徒歩5分
京福嵐山線「四条大宮」駅 徒歩5分
京都・下京区坊門町
- 京都の中心で、町家の上質な暮らしを。
リノベーション条件付き(ゲストハウスプラン)
歴史ある町家を丁寧にリノベーションしたゲストハウスへ。
国内外の旅行者から高い人気を誇るエリアに位置し、伝統建築の趣をそのままに、現代的な快適さを兼ね備えています。
京都に“暮らすように泊まる”——そんな滞在が叶う町家です。
長年にわたり守られてきた京町家の美しさを継承しつつ、
宿泊施設としての快適性と機能性を融合させた一棟ゲストハウスへ。
国内外の観光客が絶えない京都の中心地で、運用のしやすい物件です。
「文化を継ぐ」という誇りと、「不動産としての確かな資産性」。
京都ならではの上質な投資を、この町家から。
-町家施工例-
(本施工例は弊社による設計・施工事例であり、参考として掲載しています。)
物件概要
OUTLINE
- 名称
- 京都市下京区坊門町の京町家
- 種目
- 京町家:中古戸建(連棟住宅)
リノベーション条件付き物件
- 所在地
- 京都市下京区仏光寺通大宮西入坊門町
- 交通
- 阪急京都線「大宮」駅 徒歩5分
京福嵐山線「四条大宮」駅 徒歩5分
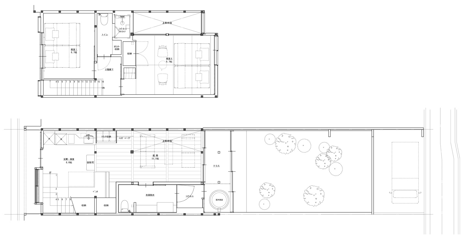
- 間取り
- 4LDK
- 地目
- 宅地
- 土地権利
- 所有権
- 用途地域
- 市街化区域:準工業地域
- 建ぺい率
- 60%
- 容積率
- 200%
- 地域地区
- 準防火地域、20m第3種高度地区、景観地区
- 設備
- 都市ガス、公営水道、公共下水
- 建築構造
- 木造瓦葺2階建
- 宅地面積
- 109.25㎡(約33.04坪)
- 延床面積
- 97.07㎡(約29.36坪)1F:52.76㎡ 2F:44.31㎡
- 接道状況
- 北側 公道 幅員約3.7m 接道約4.8m・南側 公道 幅員約1.8m 接道約4.8m
- 販売価格(土地+建物)
- 7,280万円(※リノベーション費用は別途かかります)
- 取引態様
- 売主
- 事業主
- リヴプランニング(リヴ不動産株式会社)